JW-CAD平面図トレース基礎セミナー

JW-CADでの基礎的な平面図のトレースを練習します。

手書きの図面やコピーした図面からベクターデータに書き写す作業のことをトレースと呼びます。

 

この講座は参考図を見ながらJW-CADを使ってトレースを完成させることでJW-CADの基本操作を学ぶものです。

建築CAD4級レベルの課題をトレースできることを目指します。

概要

JW-CADで平面図を描くためのコマンドを習得します。

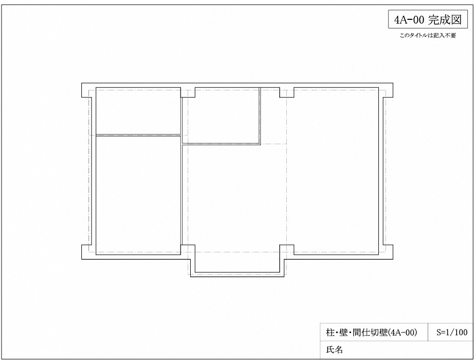
内容例1:図枠、通り芯、柱、壁、間仕切壁等を、参考図を見ながら以下の完成図を作成します。

建築CAD4級レベル課題1

内容例2:図枠、通り芯、寸法、通り芯記号当を参考図を見ながら以下の完成図を描きます。

建築CAD4級レベル課題2

内容例3:図枠、柱、木枠、間柱、柱線、壁、窓等を参考図を見ながら以下の完成図を描きます。

建築CAD4級レベル課題3

受講対象の方

島根県内の事業所の社員の方を募っております。

業種は問いません。

日時

日程はお申し込みがあってから相談によって決定します。

2日間のセミナーです。

それぞれ9:15~16:15(お昼休憩12:15~13:15)の6時間×2日です。

受講料

無料

お申込み・お問い合わせ

■お申込み・お問い合わせ方法

メールタイトルを「JW-CADトレース基礎セミナー」として

「参加ご希望」または「ご質問」をお書き添えの上

 kyouiku-kunren@pref.shimane.lg.jpまでメールください。

 

後日、日程の調整のためお返事をいたします。

 

 

 

お問い合わせ先

東部高等技術校

   ●お問い合わせ先●
島根県立東部高等技術校
住所:〒693-0043島根県出雲市長浜町3057-11
TEL:0853-28-2733
FAX:0853-28-2736
E-Mail:tobukotogi@pref.shimane.lg.jp